Cùng chiêm ngưỡng mẫu nhà thờ họ 3 gian 2 mái kết hợp nhà ngang tại xã Đông Anh – Hà Nội, nơi hội tụ vẻ đẹp kiến trúc truyền thống, bố cục phong thủy hài hòa và giải pháp thiết kế bền vững
1. Văn hóa địa phương Đông Anh, Hà Nội
Đông Anh là vùng đất lâu đời nằm ở cửa ngõ phía Bắc Thủ đô Hà Nội, nổi tiếng với truyền thống lịch sử và văn hóa dòng tộc bền vững. Đây là khu vực gắn liền với nhiều di tích lịch sử – văn hóa tiêu biểu như thành Cổ Loa, đình làng, đền miếu và hệ thống nhà thờ họ được bảo tồn qua nhiều thế hệ.
Người dân Đông Anh luôn đề cao đạo lý “uống nước nhớ nguồn”, coi việc xây dựng nhà thờ họ là cách gìn giữ truyền thống gia phong, thể hiện sự tri ân tổ tiên và tạo không gian sinh hoạt tâm linh cho con cháu trong dòng tộc. Kiến trúc nhà thờ họ tại khu vực này thường mang đậm nét truyền thống Bắc Bộ, ưu tiên sự trang nghiêm, cân đối, chuẩn phong thủy và bền vững theo thời gian.
Trong những năm gần đây, xu hướng xây dựng nhà thờ họ kết hợp vật liệu hiện đại như bê tông giả gỗ, đồng thời bổ sung thêm nhà phụ trợ phía sau, ngày càng được nhiều dòng họ lựa chọn. Phương án này giúp tối ưu công năng sử dụng nhưng vẫn giữ được vẻ đẹp cổ truyền và tính linh thiêng của công trình.
2. Thông tin dự án
- Loại hình công trình: Nhà thờ họ truyền thống kết hợp nhà phụ trợ
- Quy mô: Nhà thờ họ 3 gian 2 mái
- Địa điểm xây dựng: Xã Đông Anh, Hà Nội
- Kết cấu chính: Bê tông cốt thép giả gỗ
- KTS thực hiện: Phạm Tuấn Anh
- Thực hiện: Kiến trúc Vietnamarch 61 Nguyễn Xiển – Thanh Xuân – Hà Nội
Công trình được quy hoạch trong khuôn viên riêng biệt, bố trí khoa học giữa khu thờ tự và khu sinh hoạt phụ trợ. Thiết kế đảm bảo sự cân đối về tỷ lệ kiến trúc, phù hợp diện tích khu đất, đồng thời đáp ứng đầy đủ nhu cầu tổ chức giỗ họ, lễ Tết và các hoạt động truyền thống của dòng tộc.

3. Bản vẽ thiết kế nhà thờ họ 3 gian 2 mái kết hợp nhà ngang tại Đông Anh
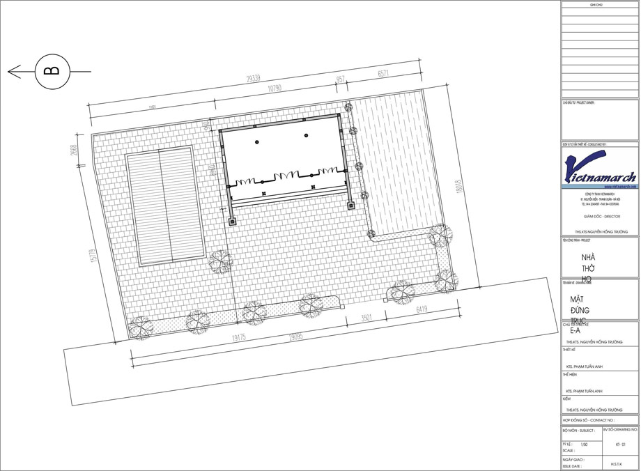
3.1. Bản vẽ mặt bằng tổng thể công trình
Dựa trên bản vẽ mặt bằng tổng thể, khuôn viên nhà thờ họ được bố trí theo trục phong thủy truyền thống, lấy nhà thờ họ làm trung tâm, phía trước là khoảng sân rộng và phía sau là nhà phụ trợ phục vụ sinh hoạt.
Tổng thể khu đất được quy hoạch khá vuông vắn, giúp dễ dàng bố trí công trình theo trục thần đạo. Nhà thờ họ được đặt lệch về một phía khu đất, tạo khoảng sân lớn phía trước, thuận tiện cho việc tổ chức nghi lễ, tụ họp dòng họ và tăng tính trang nghiêm cho không gian thờ tự.

Bản vẽ mặt bằng nhà thờ họ thể hiện rõ kết cấu 3 gian truyền thống với hệ cột bố trí đều theo nhịp, giúp nâng đỡ hệ mái 2 dốc phía trên. Không gian bên trong được chia thành 3 gian cân đối, trong đó gian giữa là gian thờ chính, hai gian bên là không gian thờ phụ và sinh hoạt tâm linh.
Phía sau công trình là nhà phụ trợ được bố trí tách biệt nhưng vẫn liên kết thuận tiện với khu thờ tự. Khu nhà phụ trợ giúp phục vụ công tác chuẩn bị lễ, tiếp khách hoặc lưu trữ đồ thờ, đảm bảo công năng sử dụng lâu dài cho dòng họ.

3.2. Cổng và cảnh quan sân vườn nhà thờ họ 3 gian 2 mái kết hợp nhà ngang tại Đông Anh
Theo phối cảnh 3D, công trình được bao quanh bởi hệ tường bao truyền thống kết hợp gạch trang trí, vừa đảm bảo tính riêng tư vừa tạo sự thông thoáng cho tổng thể khuôn viên.

Khu vực cổng chính được thiết kế đơn giản nhưng trang trọng, sử dụng mái ngói truyền thống kết hợp cửa gỗ, tạo điểm nhấn nhẹ nhàng trước khi bước vào không gian tâm linh. Lối đi từ cổng vào sân được lát đá hoặc gạch truyền thống, tạo cảm giác vững chắc và sạch sẽ.

Khoảng sân phía trước nhà thờ họ được thiết kế rộng rãi, lát đá sáng màu giúp tăng độ phản chiếu ánh sáng và tạo sự trang nghiêm cho công trình. Hai bên sân bố trí cây xanh, tiểu cảnh và thảm thực vật thấp, giúp không gian mềm mại và gần gũi thiên nhiên.
Cảnh quan tổng thể tuân thủ nguyên tắc phong thủy “tiền minh đường – hậu vững chãi”, giúp tạo sự hài hòa giữa yếu tố kiến trúc và thiên nhiên, đồng thời tăng giá trị thẩm mỹ cho công trình.
***Xem thêm: Bản vẽ nhà từ đường 3 gian 2 mái 100m2 tại xã Thái Thuỵ Thái Bình
3.3. Kiến trúc nhà thờ họ
Nhà thờ họ được thiết kế theo phong cách kiến trúc truyền thống Bắc Bộ, nổi bật với hệ mái 2 dốc lợp ngói màu đỏ cam. Độ dốc mái được tính toán hợp lý giúp thoát nước tốt và tạo cảm giác thanh thoát, bề thế cho công trình. Phần bờ nóc và đầu hồi mái được trang trí hoa văn truyền thống, góp phần tăng tính thẩm mỹ và giá trị tâm linh.

Hệ bậc tam cấp phía trước được ốp đá tự nhiên sáng màu, thiết kế cao ráo và chia bậc cân đối, tạo thế bước vào trang nghiêm cho công trình. Đây cũng là chi tiết giúp nâng cao nền nhà, chống ẩm và tăng độ bền sử dụng.

Hệ cửa bức bàn bằng gỗ được thiết kế theo dạng pano truyền thống, kết hợp ô thoáng phía trên giúp lưu thông không khí và lấy sáng tự nhiên. Các chi tiết hoa văn trang trí được thể hiện tinh tế trên đầu cột, bờ mái và các mảng tường, tạo điểm nhấn mềm mại và trang nghiêm.
Phía sau nhà thờ họ là khu nhà phụ trợ với kiến trúc đồng bộ, sử dụng mái ngói và tường gạch truyền thống. Công trình phụ trợ giúp mở rộng công năng sử dụng, phục vụ các hoạt động chuẩn bị lễ nghi, tiếp khách và sinh hoạt dòng họ. Việc bố trí nhà phụ trợ phía sau giúp giữ trọn sự tôn nghiêm cho không gian thờ tự phía trước.

4. Đơn vị thiết kế thi công nhà thờ họ tại Đông Anh Hà Nội uy tín
Vietnamarch là đơn vị chuyên sâu trong lĩnh vực thiết kế nhà thờ họ, từ quy mô nhỏ đến các công trình nhà thờ họ kết hợp hậu cung, cổng tam quan, tắc môn đá và nhà phụ trợ.
Ưu điểm khi lựa chọn Vietnamarch:
- Am hiểu sâu kiến trúc nhà thờ họ truyền thống Bắc Bộ
- Thiết kế chuẩn phong thủy và tỷ lệ kiến trúc cổ truyền
- Hồ sơ bản vẽ chi tiết, dễ thi công
- Giải pháp bê tông giả gỗ bền vững, tiết kiệm chi phí
- Tư vấn quy hoạch tổng thể khuôn viên nhà thờ họ
Bạn tại Đông Anh – Hà Nội và cần tìm đơn vị thiết kế thi công nhà thờ họ, liên hệ ngay với Vietnamarch ngay hôm nay để được tư vấn chi tiết và cụ thể nhất. Tại Vietnamarch luôn đặt yếu tố văn hóa dòng tộc và giá trị tâm linh lên hàng đầu, mang đến những công trình nhà thờ họ trang nghiêm, bền vững và mang đậm bản sắc truyền thống Việt.
Vietnamarch – Đơn vị thiết kế nhà thờ họ, từ đường uy tín: 0918.248.297
















Đánh giá
Chưa có đánh giá nào.