Bản vẽ nhà thờ họ 3 gian 2 mái có nhà phụ trợ tại Lệ Thủy, Quảng Trị với kiến trúc truyền thống trang nghiêm, bố cục mặt bằng hợp lý, không gian sân vườn rộng và giải pháp thiết kế bền vững từ Vietnamarch.
1. Văn hóa địa phương Lệ Thủy – Quảng Trị
Lệ Thủy là một trong những vùng đất giàu truyền thống văn hóa và lịch sử của tỉnh Quảng Trị. Nơi đây nổi tiếng với đời sống văn hóa làng lâu đời, đặc biệt là truyền thống tôn kính tổ tiên và gìn giữ gia phong dòng họ. Trong đời sống của người dân địa phương, nhà thờ họ không chỉ là nơi thờ cúng mà còn là không gian linh thiêng để con cháu sum họp, tổ chức giỗ chạp và giáo dục truyền thống cho thế hệ sau.
Với đặc trưng kiến trúc truyền thống miền Trung, nhiều dòng họ tại Lệ Thủy lựa chọn xây dựng nhà thờ họ 3 gian 2 mái – kiểu kiến trúc mang tính biểu tượng của nhà thờ họ Việt Nam. Kiểu nhà này vừa đảm bảo sự trang nghiêm, cân đối theo phong thủy, vừa phù hợp với điều kiện khí hậu khắc nghiệt của khu vực miền Trung.
Dự án nhà thờ họ 3 gian 2 mái có nhà phụ trợ tại Lệ Thủy, Quảng Trị được thiết kế nhằm kế thừa những giá trị truyền thống đó, đồng thời kết hợp với giải pháp kiến trúc hiện đại để công trình bền vững và tiện nghi hơn trong quá trình sử dụng.
2. Thông tin dự án
- Công trình: Nhà thờ họ 3 gian 2 mái kết hợp nhà phụ trợ
- Địa điểm xây dựng: Lệ Thủy, tỉnh Quảng Trị
- Đơn vị thiết kế: Vietnamarch – Chuyên gia thiết kế nhà thờ họ
- Quy mô: Nhà thờ họ 3 gian truyền thống
- Hạng mục phụ trợ: Nhà ngang phía sau
- Phong cách kiến trúc: Kiến trúc truyền thống kết hợp kết cấu bê tông giả gỗ
- Không gian tổng thể: Sân thờ rộng, cảnh quan cây xanh, khu phụ trợ phục vụ sinh hoạt

3. Bản vẽ nhà thờ họ 3 gian 2 mái có nhà phụ trợ tại Lệ Thủy Quảng Bình
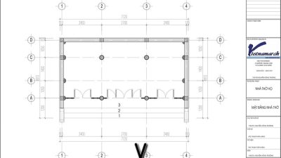
3.1. Bản vẽ mặt bằng
Dự án được thiết kế với nhà thờ họ kết hợp nhà ngang tạo thành thế chữ L, vừa vặn với diện tích khu đất và công năng sử dụng. Nhà thờ chính được đặt độc lập ở phía trước, còn nhà ngang nằm phía ngang tạo thành một tổng thể kiến trúc khép kín, vừa đảm bảo công năng sử dụng vừa giữ được sự trang nghiêm cho khu vực thờ tự.Nha

Nhà thờ chính được thiết kế 3 gian thường thấy, phân chia bố cục theo bố cục cân xứng. Diện tích của nhà từ đường là 7.7×4.8m (36m2), không quá to nhưng đủ để đặt ban thờ thủy tổ dòng họ.

Không gian nhà ngang được thiết kế làm nhà phụ trợ, tiếp khách, sắp lễ,… để không ảnh hưởng đến không gian thờ chính. Sự tách biệt này là xu hướng khi xây dựng nhà thờ họ hiện nay, điều này đảm bảo về yếu tố phong thủy, tính thẩm mỹ và công năng sử dụng hàng ngày của dòng hoh, gia đình.

3.2. Cổng và cảnh quan
Theo phối cảnh thiết kế, khu đất được bao quanh bởi hệ thống tường rào truyền thống kết hợp cổng ra vào chắc chắn. Cổng được thiết kế đơn giản nhưng hài hòa với tổng thể kiến trúc, sử dụng mái ngói và các chi tiết trang trí mang phong cách truyền thống.

Phía trước nhà thờ là khoảng sân rộng lát đá, tạo nên không gian thông thoáng cho các hoạt động như tế lễ, giỗ họ hoặc những dịp tụ họp đông người. Cảnh quan xung quanh được bố trí cây xanh, tạo bóng mát và giúp không gian trở nên hài hòa với thiên nhiên.
Ngoài ra, hàng cây và các bồn cây nhỏ được bố trí dọc theo tường rào nhằm tăng thêm yếu tố phong thủy, mang lại sự cân bằng cho toàn bộ khuôn viên.
***Xem thêm: Phối cảnh 3D nhà thờ họ 3 gian 2 mái bê tông giả gỗ tại Nho Quan, Ninh Bình
3.3. Kiến trúc nhà thờ họ 3 gian 2 mái có nhà phụ trợ tại Lệ Thủy
Nhà thờ họ được thiết kế theo kiểu mái 2 mái truyền thống, sử dụng hệ mái ngói màu đỏ cam đặc trưng. Độ dốc mái lớn giúp thoát nước tốt, phù hợp với khí hậu mưa nhiều của khu vực miền Trung. Hai đầu hồi mái được trang trí các chi tiết truyền thống tạo điểm nhấn cho công trình, đồng thời giúp tổng thể kiến trúc trở nên bề thế và trang nghiêm hơn.
Phía trước nhà thờ là hệ bậc tam cấp bằng đá, được thiết kế rộng và cân đối. Bậc tam cấp không chỉ có vai trò kết nối sân với không gian thờ tự mà còn mang ý nghĩa phong thủy, tượng trưng cho sự phân cấp không gian giữa đời sống thường nhật và nơi linh thiêng.

Công trình sử dụng kết cấu bê tông cốt thép giả gỗ, một giải pháp phổ biến trong kiến trúc nhà thờ họ hiện nay. Phương án này giúp đảm bảo độ bền cao, chống mối mọt và thích hợp với điều kiện khí hậu khắc nghiệt, trong khi vẫn giữ được vẻ đẹp truyền thống giống như kiến trúc gỗ tự nhiên. Bề mặt các cột và hệ khung được xử lý giả gỗ, tạo cảm giác ấm cúng và trang nghiêm cho không gian thờ tự.
Hệ cửa đức bàn bằng gỗ được thiết kế theo kiểu cửa truyền thống với các tấm pano lớn. Cửa có kích thước rộng, giúp không gian bên trong luôn thông thoáng và đón được ánh sáng tự nhiên. Các chi tiết cửa được chạm khắc tinh tế, góp phần tăng giá trị thẩm mỹ cho toàn bộ mặt tiền công trình.

Trong thiết kế này, mặt tiền nhà thờ sử dụng hệ cột hiên chắc chắn, giúp nâng đỡ phần mái hiên phía trước. Hệ cột không chỉ có vai trò kết cấu mà còn tạo nên vẻ bề thế, trang nghiêm cho công trình. Các chi tiết trang trí trên mái và hệ kết cấu được thiết kế theo phong cách truyền thống, mang đậm dấu ấn kiến trúc nhà thờ họ Việt Nam. Hoa văn được tiết chế vừa phải nhằm giữ sự trang nghiêm và thanh thoát cho tổng thể công trình.
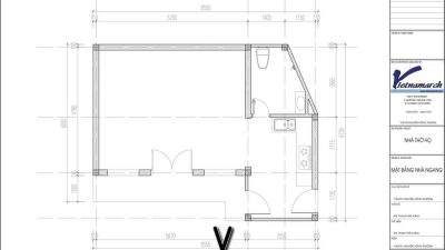
3.4. Kiến trúc nhà phụ trợ phía sau
Bên cạnh nhà thờ chính, công trình còn được bố trí nhà ngang phụ trợ bên cạnh, đóng vai trò hỗ trợ cho các hoạt động của dòng họ. Nhà ngang được bố trí:
- Phòng sinh hoạt chung của dòng họ
- Khu bếp phục vụ cỗ bàn trong những dịp giỗ chạp
- Khu vệ sinh riêng biệt
Nhà phụ trợ được thiết kế với kiến trúc đơn giản hơn nhà thờ chính nhưng vẫn giữ sự hài hòa về vật liệu và màu sắc. Phần mái cũng sử dụng ngói truyền thống, giúp công trình đồng bộ với tổng thể kiến trúc khu thờ tự.

Việc bố trí nhà ngang phía sau giúp khu nhà thờ tách biệt rõ ràng giữa không gian thờ cúng và không gian sinh hoạt, từ đó giữ được sự trang nghiêm cần thiết cho khu thờ tổ.
5. Công ty thiết kế thi công nhà thờ họ tại Lệ Thủy Quảng Trị uy tín
Vietnamarch là đơn vị có nhiều năm kinh nghiệm trong lĩnh vực thiết kế nhà thờ họ, từ đường và công trình tâm linh trên khắp cả nước. Với đội ngũ kiến trúc sư am hiểu sâu sắc về kiến trúc truyền thống và phong thủy, Vietnamarch đã thực hiện hàng trăm dự án nhà thờ họ với nhiều quy mô khác nhau.
Khi lựa chọn Vietnamarch, khách hàng sẽ nhận được:
- Tư vấn phương án thiết kế phù hợp với truyền thống từng dòng họ
- Bản vẽ kiến trúc chi tiết, khoa học
- Giải pháp kết cấu bền vững và tối ưu chi phí
- Thiết kế hài hòa giữa yếu tố truyền thống và hiện đại
Mỗi công trình do Vietnamarch thiết kế không chỉ là một ngôi nhà thờ họ đơn thuần mà còn là không gian lưu giữ giá trị văn hóa, tâm linh và truyền thống của cả dòng tộc.
Vietnamarch – Đơn vị thiết kế nhà thờ họ, từ đường uy tín: 0918.248.297

















Đánh giá
Chưa có đánh giá nào.