Giữa không gian văn hóa Kinh Bắc trầm mặc và giàu chiều sâu lịch sử, công trình nhà từ đường 3 gian 2 mái tại phường Từ Sơn, Bắc Ninh hiện lên như một biểu tượng bền bỉ của đạo lý “uống nước nhớ nguồn”. Nhà từ đường 3 gian 2 mái không chỉ là nơi thờ tự tổ tiên của một dòng họ, mà còn là không gian kết nối ký ức, gia phong. Trong bối cảnh đô thị hóa mạnh mẽ tại Từ Sơn, việc gìn giữ và xây dựng những công trình từ đường theo lối kiến trúc truyền thống càng cho thấy ý thức trân trọng cội nguồn, đồng thời khẳng định giá trị bền vững của kiến trúc dân gian Việt Nam qua thời gian.
1. Đặc điểm văn hóa kiến trúc Bắc Ninh
Phường Từ Sơn nằm trong vùng đất Kinh Bắc xưa – cái nôi của văn hóa truyền thống Bắc Bộ, nơi nổi tiếng với làn điệu quan họ, hệ thống đình, đền, chùa và đặc biệt là nhà thờ họ – nhà từ đường của các dòng tộc lâu đời. Với người dân Từ Sơn, việc xây dựng nhà từ đường không chỉ mang ý nghĩa tâm linh mà còn thể hiện truyền thống “uống nước nhớ nguồn”, sự gắn kết bền chặt giữa các thế hệ trong dòng họ.
Trong bối cảnh đô thị hóa diễn ra mạnh mẽ, nhiều dòng họ tại Từ Sơn vẫn ưu tiên lựa chọn mẫu nhà từ đường 3 gian 2 mái truyền thống, đảm bảo sự trang nghiêm, chuẩn mực về kiến trúc và phong thủy. Các công trình ngày nay thường kết hợp vật liệu hiện đại như bê tông cốt thép giả gỗ để tăng độ bền, giảm chi phí bảo trì nhưng vẫn giữ được hồn cốt kiến trúc cổ truyền Bắc Bộ.
2. Thông tin dự án
- Loại hình: Nhà từ đường 3 gian – 2 mái
- Diện tích xây dựng: Khoảng 60m²
- Địa điểm: Phường Từ Sơn, tỉnh Bắc Ninh
- Kết cấu chính: Bê tông cốt thép giả gỗ
- KTS thực hiện: Phạm Thái Hưng
- Thực hiện: Kiến trúc Vietnamarch 61 Nguyễn Xiển – Thanh Xuân – Hà Nội
Công trình được thiết kế tối ưu trong khuôn viên đất hiện hữu của dòng họ, đảm bảo đầy đủ công năng thờ tự, bố cục chuẩn mực và hài hòa với cảnh quan xung quanh.
3. Phối cảnh 3D nhà từ đường 3 gian 2 mái tại phường Từ Sơn, Bắc Ninh
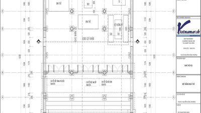
3.1. Bản vẽ mặt bằng
Xét theo bản vẽ mặt bằng tổng thể, không gian được tổ chức theo mô hình nhà – vườn – ao quen thuộc của làng quê Bắc Bộ. Nhà thờ họ được bố trí ở phía trong khu đất, phía trước và bên cạnh có khoảng sân và ao, phía sau tựa vào khu vườn nhỏ. Đây là cách đặt nhà thờ rất phổ biến trong kiến trúc truyền thống: không quay thẳng ra đường lớn, tránh ồn ào, đồng thời có đủ khoảng thoáng phía trước để tạo sự tôn nghiêm. Vị trí này giúp nhà thờ giữ được sự tĩnh lặng, phù hợp với tính chất tâm linh của công trình.
Khu nhà ở và bếp được đặt lệch sang một bên, có lối tiếp cận riêng, không đi xuyên qua không gian thờ tự. Sự tách bạch này cho thấy tư duy bố trí rất rõ ràng giữa “không gian thờ” và “không gian ở”, vừa thuận tiện cho sinh hoạt hằng ngày, vừa giữ được sự trang nghiêm cần thiết cho nhà từ đường.

Đối với riêng nhà thờ họ, được phân bổ với 3 gian. Gian giữa là gian thờ chính, nơi đặt ban thờ tổ, khám thờ và không gian hành lễ trang nghiêm. Hai gian bên được bố trí cân xứng, sử dụng làm không gian thờ phụ hoặc phục vụ các nghi lễ của dòng họ.

3.2. Cảnh quan sân vườn và không gian phía trước nhà từ đường
Nhà từ đường được đặt ở vị trí trung tâm khu đất, phía trước là khoảng sân rộng lát gạch đỏ truyền thống, tạo sự trang nghiêm và sạch sẽ. Sân vừa là không gian đón tiếp, vừa đóng vai trò minh đường, giúp tôn cao giá trị phong thủy cho công trình.

Phía trước sân được thiết kế thêm cuốn thư đá được đặt chính giữa sân, trước hồ sen. Trong không gian nhà từ đường, bức cuốn thư nhắc nhở rằng nơi đây không chỉ thờ tổ tiên, mà còn là chỗ để con cháu soi lại nếp nhà, ghi nhớ lời răn dạy của các thế hệ trước. Cảnh quan xung quanh được tổ chức gọn gàng, kết hợp vườn cây xanh và không gian thoáng đãng, tạo sự cân bằng giữa kiến trúc và thiên nhiên – đúng tinh thần kiến trúc truyền thống vùng Kinh Bắc.
***Xem thêm: Bản vẽ nhà thờ họ 3 gian 2 mái có cột đồng trụ tại Điện Biên
3.3. Kiến trúc nhà từ đường 3 gian 2 mái tại phường Từ Sơn
Bước vào bên trong là hình ảnh bậc tam cấp, trong văn hóa Á Đông, tam cấp thường được lý giải theo trật tự thiên – địa – nhân, nhấn mạnh mối quan hệ hài hòa giữa con người với tự nhiên và xã hội, chứ không phải yếu tố mê tín.

Phía trước công trình là cột đồng trụ, vừa mang vai trò định hình không gian, vừa tạo điểm nhấn kiến trúc. Trên thân cột được chạm khắc câu đối chữ Hán Nôm với nội dung hướng về đạo lý tổ tiên, gia phong và truyền thống dòng họ. Việc sử dụng chữ Hán Nôm ở đây không nhằm khoe hình thức, mà thể hiện sự tiếp nối văn hóa, giữ lại ngôn ngữ biểu tượng đã gắn bó lâu đời với kiến trúc thờ tự Việt Nam.

Hệ mái lợp ngói mũi hài tạo nên hình ảnh quen thuộc, lớp ngói xếp chồng gợi liên tưởng đến vảy rồng – một cách nói mang tính hình tượng để diễn tả sự bền chắc, che chở. Đỉnh mái bố trí hoành phi nhỏ khắc dòng chữ “Lưu – Quang – Đức” bằng chữ Hán, mang thông điệp rõ ràng: đức hạnh được lưu giữ thì ánh sáng gia phong sẽ còn mãi. Hai bên đỉnh mái là kìm nóc, có tác dụng giữ mái, chống xô lệch trong điều kiện thời tiết khắc nghiệt, đồng thời hoàn thiện hình thái kiến trúc truyền thống.

Về kết cấu, công trình sử dụng bê tông cốt thép làm hệ chịu lực chính. Đây là lựa chọn mang tính thực tế và khoa học, giúp nhà từ đường có độ bền cao, phù hợp với yêu cầu sử dụng lâu dài. Trên nền kết cấu hiện đại đó, các chi tiết được hoàn thiện bằng sơn giả gỗ, vừa giữ được cảm giác ấm áp, gần gũi của kiến trúc truyền thống, vừa giảm áp lực bảo trì so với gỗ tự nhiên trong điều kiện khí hậu nóng ẩm.
Sự kết hợp giữa kết cấu hiện đại và hình thức truyền thống cho thấy một tư duy rõ ràng: không sao chép quá khứ một cách máy móc, mà chắt lọc những giá trị phù hợp để sử dụng trong hiện tại. Chính cách làm này giúp nhà từ đường vừa vững chắc về kỹ thuật, vừa chuẩn mực về tinh thần thờ tự.
4. Đơn vị thiết kế nhà từ đường, nhà thờ họ tại Từ Sơn Bắc Ninh uy tín
Vietnamarch là đơn vị chuyên sâu trong lĩnh vực thiết kế nhà thờ họ, nhà từ đường truyền thống, với hàng trăm công trình trải dài khắp các tỉnh thành trên cả nước, đặc biệt tại khu vực Bắc Bộ.
Ưu điểm nổi bật của Vietnamarch:
- Am hiểu sâu sắc kiến trúc truyền thống và văn hóa dòng tộc
- Thiết kế chuẩn phong thủy – chuẩn tỷ lệ kiến trúc
- Bản vẽ chi tiết, dễ thi công, tối ưu chi phí
- Giải pháp bê tông giả gỗ bền vững, phù hợp sử dụng lâu dài
Vietnamarch luôn đặt giá trị văn hóa, tâm linh và bản sắc dòng họ lên hàng đầu, mang đến những công trình nhà từ đường trang nghiêm, bền đẹp và trường tồn cùng thời gian. Nếu bạn cần tìm kiếm đơn vị thiết kế thi công nhà thờ họ tại phường Từ Sơn Bắc Ninh, hãy liên hệ ngay tới Vietnamarch để được tư vấn và báo giá chi tiết nhất.
Vietnamarch – Đơn vị thiết kế nhà thờ họ, từ đường uy tín: 0918.248.29

















Đánh giá
Chưa có đánh giá nào.